The Adams | Interior Townhome

Pictured: The Adams | 2,012 SF | 124 SF Balcony Open-concept main level with spacious living and dining areas, ideal for entertaining Modern kitchen includes JennAir appliances, oversized 10-ft island, quartz countertops, and walk-in pantry Private balcony off the main living area with gas line connection for grilling Primary suite features large windows, sitting area, […]
DINE

Enjoy the celebrated Companion Restaurant, half a block from home.
LIVE

Local grocery stores, Publix, Kroger, and Sprouts are a short drive away.
SHOP

Explore Westside Village, which features several acclaimed restaurants, salons, spas, recreational facilities and shopping
The Carlton | End Townhome

The Carlton | 2596 SF | 480 SF Roof Top Terrace
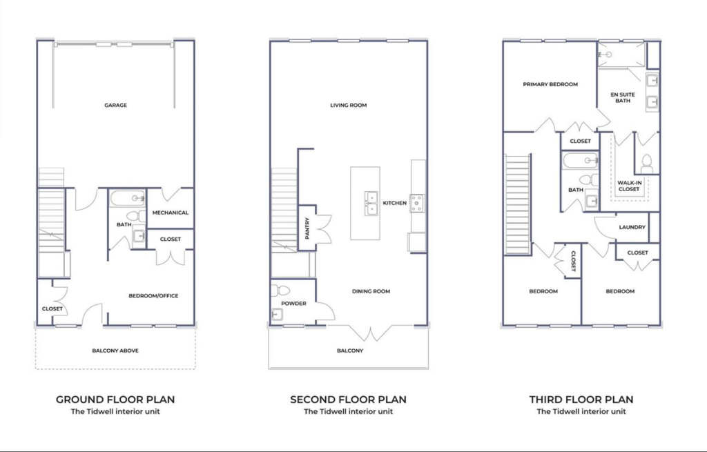
The Tidwell | Interior Townhome

The Tidwell | 2012 SF | 124 SF Balcony